触摸屏标准拍击检验筛
拍 击 筛

一、用途:
RCZ新型摆动拍击筛分机是一款高精度筛分机械,广泛应用于化工、食品、医药、矿山、高校、工厂等试验室用于各种物料的筛分设备。
二、结构原理:
1、本机利用电机平布带轮带动偏心摆动机构,带动筛框作有规律的椭圆形轨迹转动,可以根据物料分级要求,筛框可以1-8层任意选装。
上部通过螺旋斜面轴承顶杆机构,带动拍击臂进行规律拍打,使难以筛分的物料在摆动和拍击振动下顺利分离。使筛分效率和筛分精度显著提高。
2、本机采用电子数控操作面板,数显定时,可准确方便调整每次筛分时间,并记录每次拍击次数及每次的摇摆次数。
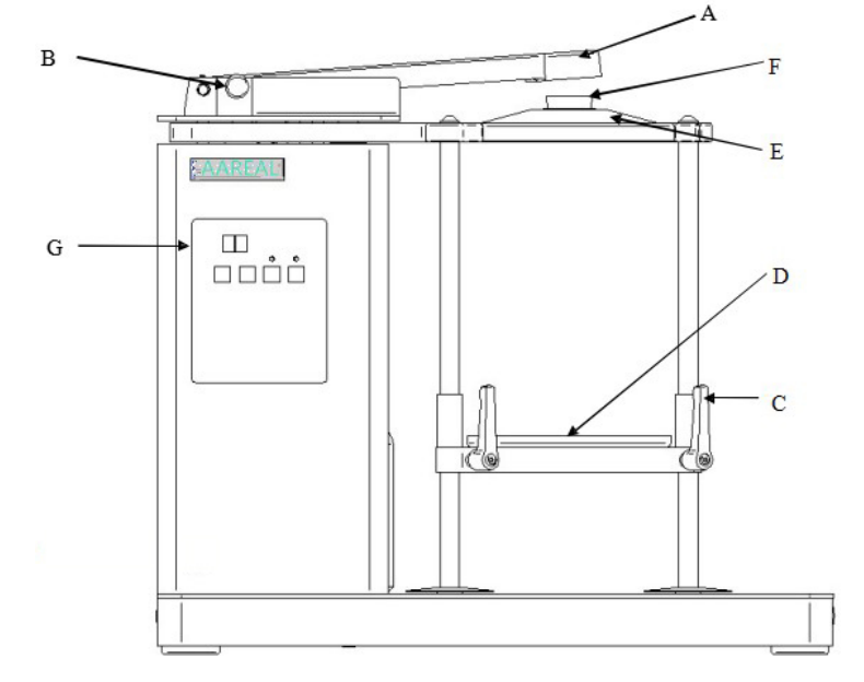
前视图

序号 | 名称 | 功能 |
A | 拍击臂 | 上下拍击敲打振动筛框 |
B | 拍击定位销 | 开启或关闭拍击功能 |
C | 锁紧手柄 | 底框托架锁紧机构 |
D | 下托盘 | 安装定位筛框 |
E | 上压盖 | 固定筛框上部 |
F | 聚氨酯砧座 | 将拍击振动传递给筛框 |
G | 操作面板 | 用于调整确定工作状态和时间 |
各部位功能表介绍
1、显示操作面板 按下电源启动,触屏显示屏亮屏

2、时间调整 增加/减少时间 显示屏显示增减时间范围为0-99分钟

操作方法:按下绿色启动按钮开,设备开始运行。
按红色按钮关,设备停止运行,显示本次拍击次数和本次摇摆次数。
从新按下绿色按钮,设备从新继续运行,拍击和摇摆次数归零重新计数。
每次可重新触屏输入时间。
3、筛框的安装:
本机采用GB/T6003.1-1997标准筛框¢200×50
1、安装筛框时,先把立柱下部筛框底部托架紧定把手螺钉松开,并将托架向下推。
2、把所需筛框放置到底部托架上,盖好顶盖,将托架向上推进,直到上部定位部充分到位,然后把紧定把手锁紧。


4、筛框取出:
1、先把拍击臂提起。
2、把立柱底框托架紧定把手松开,向下推开,取去筛框。

5、关闭拍击臂
B处是一偏心锁定销,先把锁定销向外拔出,抬起拍击臂A,转动锁定销把拍击臂抬高锁定,即可停止拍打功能。
三、日常维护:
为保持设备良好状况,请注意日常维护和保养。
不要用自来水直接冲洗整机
内有高压电器谨防触电
清洁 只能使用布蘸水。禁止使用溶剂。
1)、应保持设备清洁,筛网每次用后要及时用毛刷清扫干净,对较
难清理的筛网物料,建议采用超声波浴清理。
2)、对拍击臂、转动螺旋顶杆机构要定期加注轻质润滑油。
3)、设备停止运转后,人员离开要及时断开电源、
4)、插拔电源要捏紧插头,不准扯拉电线。
四、包装和运输:
本设备运输包装适用于GB机械设备通用运输包装技术规范。
如果因包装运输不当,造成设备损伤,影响使用,应根据责任进行索赔。
运输:
运输吊装应按下面图示,用4个专用M20×150的螺栓紧固到底座上进行吊装。净重量:约为75公斤。

吊装位置图
运输中不允许倒置、侧放 运输过程中不允许堆压、投掷
温度的变化
如果温度变化很高(例如在运输过程中),防止凝结水。否则电子元件会损坏。
五、设备的安装:
安装地点的参数:环境温度:5°到40°C 海拔高度低于3000M 能达到相对湿度为80%
如果环境温度低于或超过这些值,电气和机械部件会损坏,性能数据被改变到一个未知的程度。
1、设备应安装于适当高度的工作台面上,校正好水平位置,不得倾斜,4个支脚要平稳接触台面,不得有振动。
2、电源插座必须与本机匹配,设备需可靠接地接零。
六、技术参数:
1、本机是断续运行,8小时的单班操作实验室设备。
2、本机筛框选配GB/T6003.1-1979标准筛框。
3、电机功率:0.55Kw
4、旋转次数:310±6次/Min
5、拍击次数:170±3/次
6、拍击高度38±6毫米
7、旋转行程:16毫米
8、配用电源:电压220V 频率50赫兹




